山澄空間設計-美術館

山澄空間設計-美術館
山澄空間設計-美術館
山澄空間設計-美術館
山澄空間設計-美術館
山澄空間設計-美術館
山澄空間設計-美術館
山澄空間設計-美術館
山澄空間設計-美術館

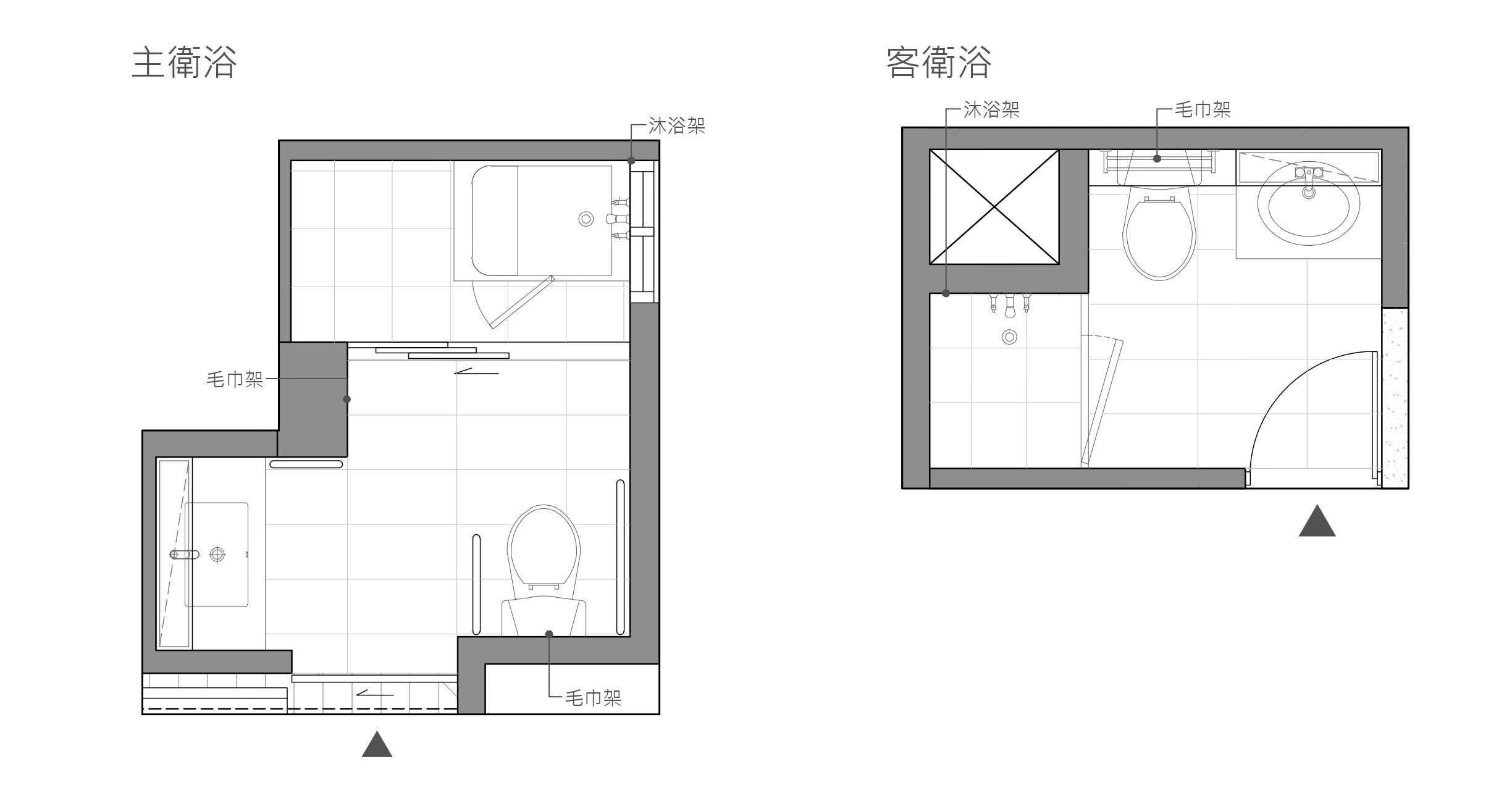
1.配合使用需求調整全套衛浴,進行乾濕分離衛浴設計及無障礙規劃,解決使空間打滑的最主要問題。 2.將固定浴缸拆除,規劃為開門式浴缸,方便出入且可以坐洗,讓長者以及行動不便的人在使用濕區時可以不用擔心安全問題。 3.考量到無障礙設計,將原先開門重新設計成90cm的推拉門,而在坐臥起身時會有不便的問題上,在便座起身及乾區迴轉半徑空間上設置之扶手,讓每一個動作連貫且安全舒適。 4.設計師針對安全與收納性的問題,將洗臉檯從原先只有面盆的設計上,規劃為落地形的浴櫃以及下嵌式洗臉盆,可提供衛浴浴品收納之外,也可以不用擔心為了起身按壓臉盆造成的危險。

改造背景
本案為屋齡老舊之老屋翻修案,由於屋主夫妻兩人平日較少待在此住宅,但是對於這棟房子還抱著一個很大的想法–共享住宅,此共享住宅的概念是希望如果有親朋好友來到此處都可以放心使用各項設施、享受空間的美與人與人的互動,所以在改造上需要考量到不同使用者的需求、便利性、安全性與美感,也因為考量到未來長者會居住於此,需要給予其出入方便的衛浴空間。
建築物型態舊翻新-公寓大樓
屋齡17年
家族成員共享宅
改造面積兩間衛浴共3坪
施工費50萬
施工期間60天

修繕前

修繕前

修繕後

修繕後
設計巧思
屋主需求:
1. 由於為舊屋翻新,整體設備已經老舊,屋主希望衛浴空間上防水與止滑性皆可以重新施作。
2. 原先並無乾濕分離,容易造成水流噴濺,使清潔與使用都不易,同時也造成安全上的疑慮。
3. 屋主希望主衛浴空間可以日後作為無障礙空間使用,讓親朋好友可以不用擔心個人的情況放心使用衛浴空間,達到心中的夢想的共享宅概念,尤其是對於年邁的父母可以更加安心的使用。
4. 客浴空間因無對外窗,透氣不佳容易產生霉味,光線不足易摔跌,希望可以重新設地動線以及設備更新。

設計概念:
1. 衛浴空間應該為使人放鬆身心、可與自我對話之空間,因此安全性與舒適性為最主要目標。重新規劃磁磚排序方式,將原分割過於密集之地壁磚,設計為視覺上較優雅且舒適的灰色調中型磁磚,放大空間的同時,因溝縫減少使清潔更加便捷。
2. 將客浴馬桶後方排水牆面,重新設計安排管線,讓牆面成為同一平面,空間更加簡約大方。
3. 使用止滑材料與舒適的燈光搭配,使原先黯淡無光且具安全性問題的空間重新煥然一新。
4. 在設備上融合年輕人的思想與年長者的使用需求進行規劃;使整體空間符合便利與無障礙使用機能外,增加收納空間,並藉材質的紋理與搭配,全齡舒適居家生活,並兼具視覺感受與功能性。

設計機能性:
1. 在主衛浴設計上日後主要作為無障礙空間使用,於出入口上設計為推拉門。
2. 而原先會造成空間壓迫並無法擁有乾溼分離的固定式浴缸,更改為結合淋浴功能且安全性更好的座式浴缸,大大減少原始空間產生的各種安全問題。
3. 同時也在乾區設計各種無障礙設備,讓空間一方面滿足屋主在衛浴上的使用機能同時也重新成為使人放鬆身心的歸所。
4. 增設鏡櫃與下嵌式臉盆浴櫃,讓衛浴用品擁有一個好歸處,同時可以遮住外露管線。

設計產品運用:
1. 採用TOTO I型扶手與可動式扶手,可提供使用者起身坐下之輔助,使用上輕巧無負擔,照護或不須使用時也可輕鬆上先不阻礙。
2. 採用暖房乾燥機,因換氣功能有效增加通風功能,使原先無對外窗之客浴減少黴菌的孳生,暖風功能可以溫暖冬季衛浴的寒冷。
3. 運用下嵌式臉盆搭配浴櫃可以增加檯上下收納空間。

施工安裝要點與安全考量:
1. 由於未來主要是以無障礙空間為主,故在各個空間上增設扶手椅作為起身時的安全輔助。
2. 在材質上為了以防打滑的問題,所以地磚上特別採用止滑磚,以增加與地面的摩擦力。
3. 在門口的門檻以及門的設計上皆考量無障礙設計,以坡道與推拉門滿足不同使用者需求。

BEFORE

主衛浴修繕前

主衛浴修繕前

主衛浴修繕前

主衛浴修繕前

客衛浴修繕前

客衛浴修繕前

主衛浴修繕前

主衛浴修繕前

AFTER

主衛浴修繕後

主衛浴修繕後

主衛浴修繕後

主衛浴修繕後

主衛浴修繕後

主衛浴修繕後

客衛浴修繕後

客衛浴修繕後

產品運用
馬桶:TOTO-CW887CRTW-S C00A01
便座:TOTO-TCF6601TR C00A01
馬桶:TOTO-TC400CVK-1 C00A01
淋浴龍頭:TOTO-TBS04302P1-S C00A01 LF
升降桿:TOTO-TBW01016P C00A01
暖房乾燥機:TOTO-TYB3151AAR-S C00A01
扶手:TOTO -TS134GY6S-SP C02A01 I型扶手#NW1
馬桶:TOTO-EWC731-SP#SY-SC00A01
下嵌式臉盆:TOTO-LW540E-S C00A01
臉盆:TOTO -LW523GUR#W C00A01
臉盆龍頭:TOTO-TLS04301PC-S C00A01 LF
臉盆龍頭:TOTO-TLG04308PC-S C00A01 GA
設計公司
公司名山澄空間設計
地 址新竹縣竹北市勝利十五街258號
設計師陳香吟 設計總監
電 話03-6675448