加宇室內裝修設計有限公司-雅致

加宇室內裝修設計有限公司-雅致
加宇室內裝修設計有限公司-雅致

調整使用機能,增加收納及好清潔

改造背景
1. 浴室漏水,使其房間內部牆壁壁癌嚴重及滲水至樓下天花板
2. 每次使用浴室後整間濕氣很重
3. 無收納功能,瓶罐擺放雜亂
4. 地面排水口洩水不良
建築物型態二層樓透天
屋齡40
家族成員2人
改造面積0.95坪
施工費25萬
施工期間40天

修繕前

修繕前

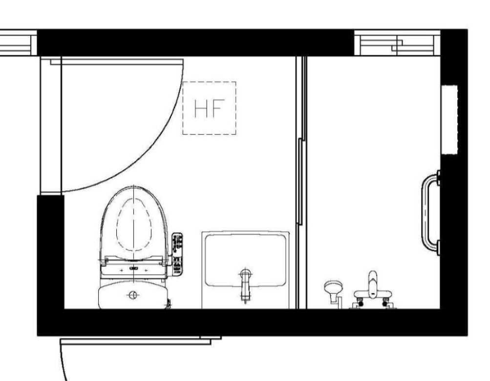
修繕後

修繕後
設計巧思
1. 冷熱水管更新,排水管移位至角落處,落實防水及試水
2. 淋浴區壁面新增崁入置物空間及角落處設層板,避免鑽孔破壞防水層,又有沐浴用品擺放
3. 一字型安全扶手,增加安全性,供之後樂齡生活使用
4. 鏡櫃增設,減少檯面雜亂及增加收納
5. 暖風機四種室內循環換氣功能,能安靜長效的協助室內換氣,保持空氣清新。
6. 設備選擇易清理無複雜造型

BEFORE

AFTER

產品運用
馬桶:TOTO-CW769CTW
便座:TOTO-TCF23710ATW
臉盆:TOTO-L710CGUR
臉盆龍頭:TOTO-TLS04301PD
淋浴龍頭:TOTO-TBS04302P1A-S
設計公司
公司名加宇室內裝修設計有限公司
地 址台中市北屯區安順三街31號
設計師紀淑慎
電 話04-22425472